Ottimo trilocale ristrutturato con balcone
€ 335.000
Firenze, zona Coverciano
Dettagli
Contratto Vendita
Rif VE0003FON
Prezzo € 335.000
Provincia Firenze
Comune Firenze
Zona Coverciano
Indirizzo Via dei Fontebuoni">
Vani 3
Camere 2
Bagni 1
Classe energetica
F (DL 192/2005)
EPI 175 kwh/m2 anno
Piano 1 / 4
Riscaldamento autonomo
Condizioni ottime condizioni
Spese condominiali € 50
Anno di costruzione 1950
Ascensore si
Cucina angolo cottura
Consistenze
| Descrizione | Superficie | Sup. comm. |
|---|---|---|
| Principali | ||
| Immobile - 1° piano | 65 Mq | 65 Mqc |
| Totale | 65 Mqc | |
Coverciano, pressi via Fontebuoni vendesi ottimo tre vani, 65 mq circa, posto al piano primo con ascensore, in palazzina signorile anni '50 in completa fase di ristrutturazione.
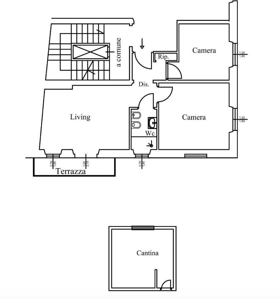
L'appartamento frutto di un frazionamento di una più ampia unità verrà così suddiviso: ingresso a comune, soggiorno con angolo cottura con accesso al balcone con affacci interni, due camere di cui una matrimoniale e una singola, servizio finestrato oltre ripostiglio.
Completa la proprietà una comoda cantina finestrata posta al piano seminterrato, con accesso dal vano condominiale. Impianti nuovi e a norma, termosingolo, predisposizione aria condizionata, infissi a taglio termico, ottime rifiniture di pregio. Consegna prevista per Aprile 2026. Ottima collocazione in zona residenziale e ben servita da mezzi pubblici e attività commerciali , ottimo anche come investimento ai fini locativi di qualsivoglia durata oppure come prima abitazione.
Alcune delle foto sono dei rendering inserite solo a scopo dimostrativo e non hanno nessun vincolo contrattuale, inoltre le spese condominiali sono presunte verranno poi calcolate a fine lavori dall'amministratore. VENDE SOCIETà
L'appartamento frutto di un frazionamento di una più ampia unità verrà così suddiviso: ingresso a comune, soggiorno con angolo cottura con accesso al balcone con affacci interni, due camere di cui una matrimoniale e una singola, servizio finestrato oltre ripostiglio.
Completa la proprietà una comoda cantina finestrata posta al piano seminterrato, con accesso dal vano condominiale. Impianti nuovi e a norma, termosingolo, predisposizione aria condizionata, infissi a taglio termico, ottime rifiniture di pregio. Consegna prevista per Aprile 2026. Ottima collocazione in zona residenziale e ben servita da mezzi pubblici e attività commerciali , ottimo anche come investimento ai fini locativi di qualsivoglia durata oppure come prima abitazione.
Alcune delle foto sono dei rendering inserite solo a scopo dimostrativo e non hanno nessun vincolo contrattuale, inoltre le spese condominiali sono presunte verranno poi calcolate a fine lavori dall'amministratore. VENDE SOCIETà
Video
Richiedi maggiori informazioni
Mappa
Zoom della mappa
Apri con:
Apple Maps
Google Maps
Waze
Contattaci
Beni Immobili Srl
Viale Giuseppe Mazzini, 74 50132 FIRENZE (FI)
Viale Giuseppe Mazzini, 74 50132 FIRENZE (FI)
P.IVA: 05230270489
+39055284534





